Category
Interiordesign
Date
January – June 2024
Used programs
Archicad, InDesign
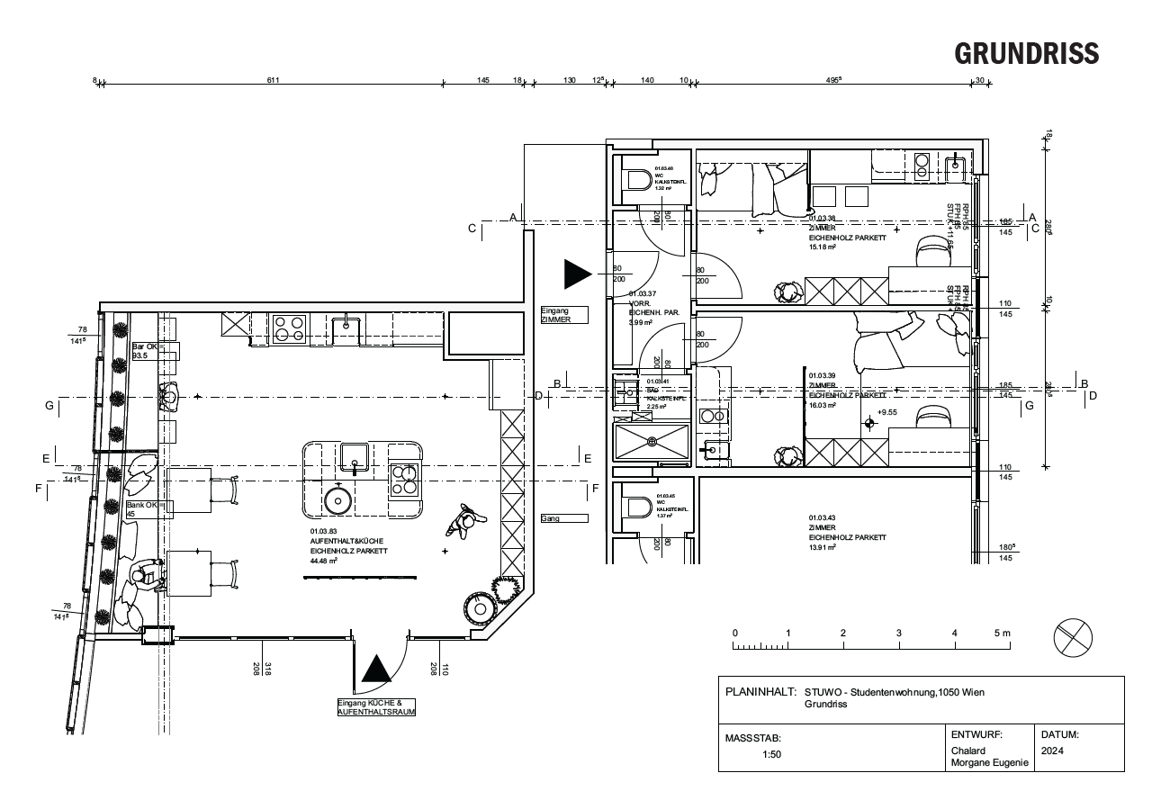
In this project, the requirement was to design one room and the shared kitchen for the 3rd floor of a student housing in Vienna – I decided to explore two different room layouts to give students more choice based on their preferences.
To understand the needs of students, I interviewed a few friends and found that many would love the option to cook in their own room, which was set as my main goal.
To create a harmonious look, I used the same materials throughout. I also added soft panels above the desk and bed for acoustic comfort and as a pinboard for photos or notes, allowing for personal touches.
In the kitchen, I aimed for a balance between openness and privacy, using textured glass panels to reduce noise and improve the atmosphere. There are 32 individual lockers, so each student has a secure space for kitchen utensils and food, avoiding mix-ups with others.
We used Archicad to draw the floor plans and create 3D renderings, bringing the design to life.












